• Sebesség határolók

  • Sebesség határolók
    Sebesség határolók - LK
    LK sebesség határolók
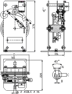
    kód típus tárcsa átm. (D) mm kötél D. mm próba tárcsa átm. (P) A mm B mm C mm névl.seb. max m/s befogási seb. m/s
    D240210 LK200 207 6-6,5 143 9,5 4 12 1,48 0,32-1,70
    D240210/092 LK200 207 6-6,5 143 9,5 4 12 0,67-0,72 0,92
    D240210/100 LK200 207 6-6,5 143 9,5 4 12 0,73-0,80 1,00
    D240210/140 LK200 207 6-6,5 143 9,5 4 12 1,00-1,10 1,40
    D240220 LK250 257 6-8 183 10 4,5 12 1,74 0,32-2,00
    D240220/092 LK250 257 6-8 183 10 4,5 12 0,67-0,72 0,92
    D240220/100 LK250 257 6-8 183 10 4,5 12 0,73-0,80 1,00
    D240230 LK300 307 6-8 220 10 4,5 12 2,37 0,40-2,73
    D240230/092 LK300 307 6-8 220 10 4,5 12 0,67-0,72 0,92
    D240230/100 LK300 307 6-8 220 10 4,5 12 0,73-0,80 1,00
    D240230/140 LK300 307 6-8 220 10 4,5 12 1,00-1,10 1,40
    D240230/200 LK300 307 6-8 220 10 4,5 12 1,50-1,60 2,00
    D240240 LK315 315 8-10 220 12 6 14 2,81 0,40-3,24
    95/16 CE tanúsítvánnyal, érintkezővel és próba tárcsával.
    Kétirányú működés.
    Más sebességű sebesség határolók rendelésre.
    "Nehéz" kivitelű eszköz típusa: HB500.
    Megjegyzés: a névleges menetsebességet megrendeléskor kérjük megadni!
    Műanyag védőburkolat kódja: D240505
    Comfort-Lift

    LK Sebesség határolók
    kód jellemzők kép
    D240250 Távműködtető
    12-24-48-110-230 Vdc
    12-24-48-110-230 Vac

    Csak a sebességhatárolóval együtt rendelhető!
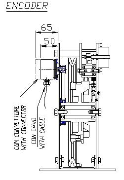
    D240260 Inkrementális jeladó
    D240482 kötélkiugrásgátló LK sebesség határolóhoz
    Comfort-Lift
    A változtatás jogát fenntartjuk.